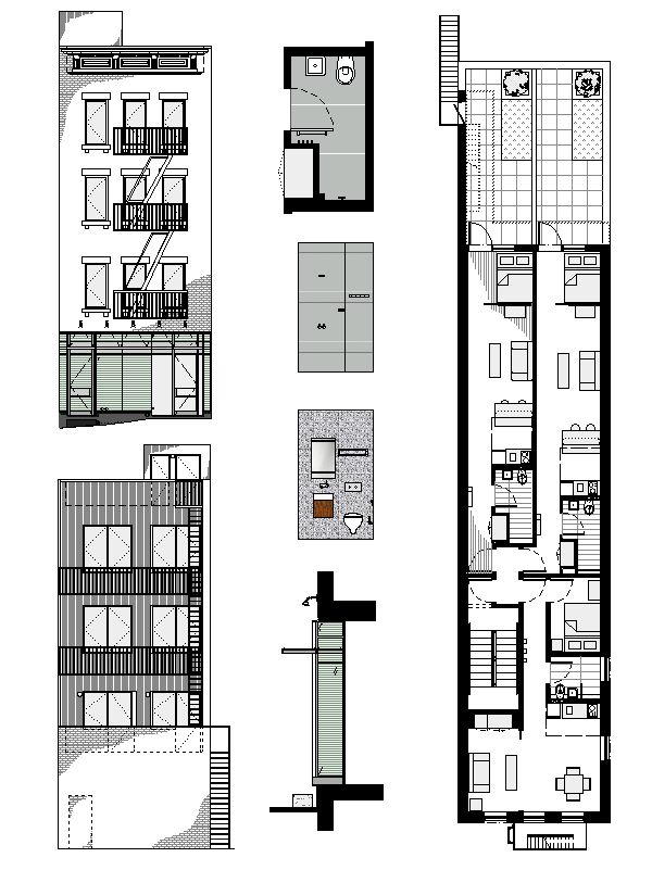
midtown long stay hotel
tka studio
02.01.09
 
offsetcondition design