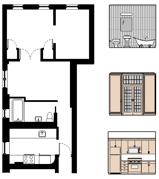
gramercy park apartment
05.01.04
 
offsetcondition design