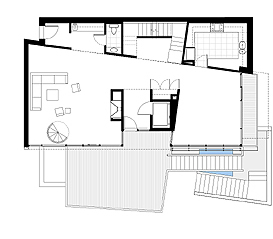
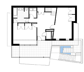
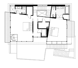
scudders lane
david jay weiner architects
07.01.04
 
offsetcondition design