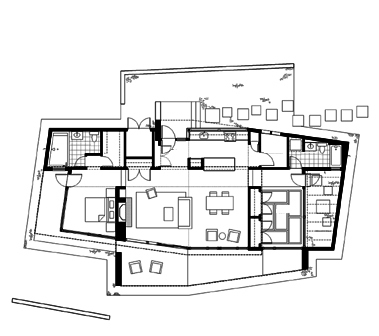
zen garden house
david jay weiner architects
as seen in architectural record
06.01.05
 
offsetcondition design